Whoo! We’re almost ready to pull the trigger!
Last Friday we made a quick decision to drive 1,000 miles to Elk City, Oklahoma on the weekend. Driving 10 hours a day is not how I prefer to spend my weekends, especially if I’m returning to the same starting point! But I’m really glad that we did it.
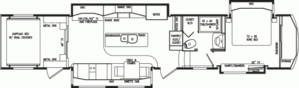
We drove to Oklahoma to actually step inside one of the trailers we are planning to buy. We’ve looked at floor plans and dozens of photos and videos, but it was important for us to walk through the unit to see how well we would actually “fit” in the space.
The trailer we’ve decided to buy is a DRV Fullhouse JX450 – a 46-foot toy hauler with a 10-foot garage.
The toy hauler will give Shawn his much-needed office space, as well as providing room to haul a (future) gas-powered toy. It gives us an extra queen-size bed for visitors, and has a few nicer upgrades like a dishwasher and space for a washer & dryer. The rear door/ramp converts into a back patio which will be nice for lounging and socializing.



Very few DRVs are actually purchased “on spec” from the dealer. 98% are ordered through a dealer from the factory for a customer who has chosen their specific options and customizations. This one, in fact, was retrieved by its new owner the day we arrived!
We could have waited to find one closer to us, but we’d be rolling the dice on when/where we could find another one. We really wanted to finalize our choice.
After spending time crunching numbers and budgets, we feel comfortable that this trailer provides what we need in a package that we can afford.
Now we’re looking at smashing other obstacles, like how to sell our current trailer, how to arrange our travel schedules to be able to drop off one and pick up another, and how to avoid being homeless in the interim!
If anyone reading this is interested in a 2011 Cedar Creek Silverback, send me a message!

That’s a really beautiful trailer. Love all the wood
It’s actually a little too much wood, in my opinion, but how else are ya gonna have enough cabinet space? 🙂
I must say it is a beautiful trailer! The only drawback that I see is it size. We have a 38-foot Cameo and we often run into situations where we just won;t fit in the campsite. At 46-feet I’m afraid that you will find yourself unable to visit some places you would like to visit because you won’t fit. A 40-foot motor home is concerned to be a BIG rig. What will your combined length be when you are hooked up? We have a combined length of 55 feet and that makes for some exciting moments on the road, especially in cities and turning tight corners into parking lots.
Yes, it’s a beautiful trailer, but do you really want one THAT big?
Yes, we do. We’ve given it a lot of thought and this is what works best for us.
I swear some of these things have more room than my house–looks great! Now that you’ve pinned down the what, any idea when?